Rango de precios: De a

Comparar listados

SE VENDE NAVE INDUSTRIAL

30120 El Palmar
799.900€

Descripción

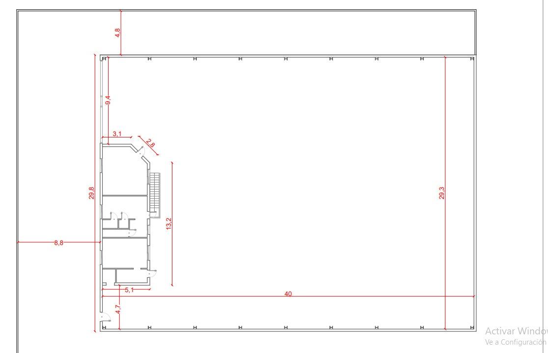
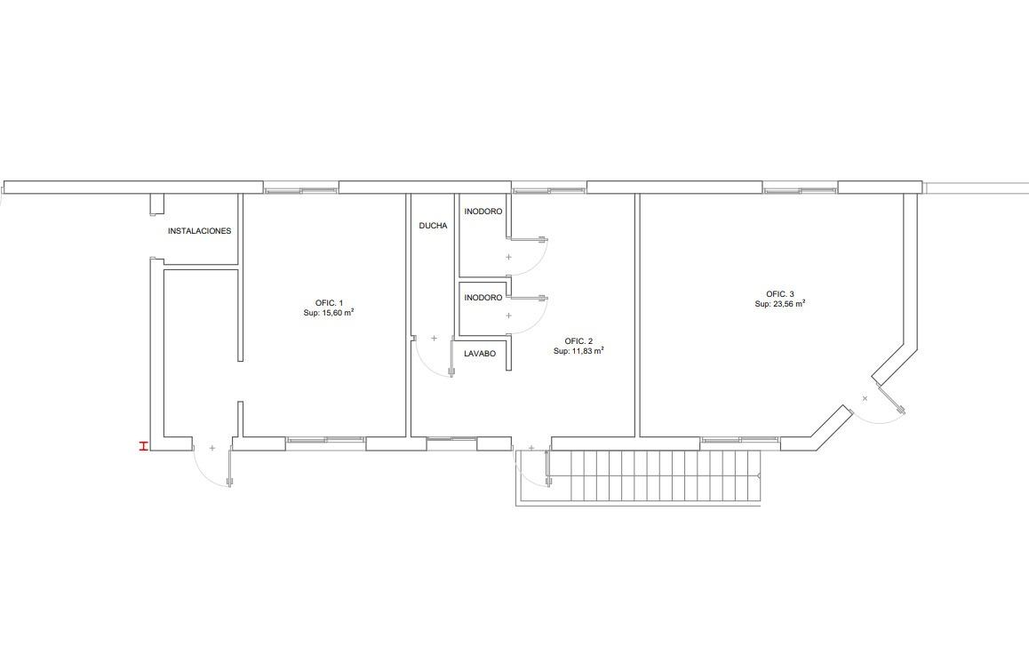
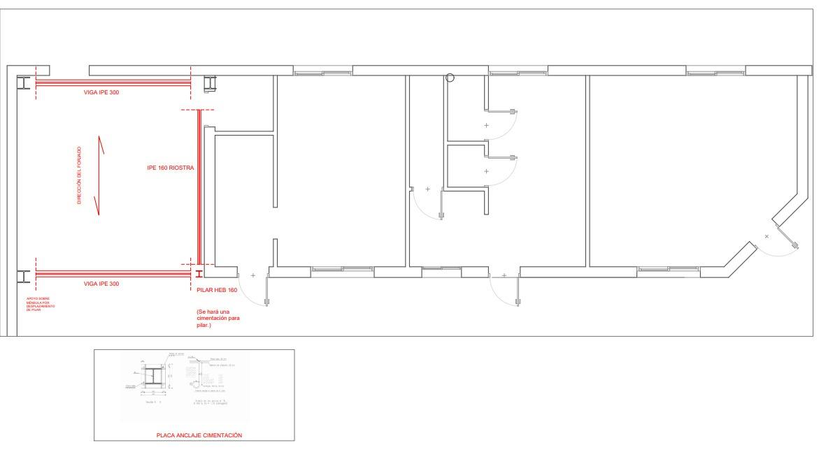
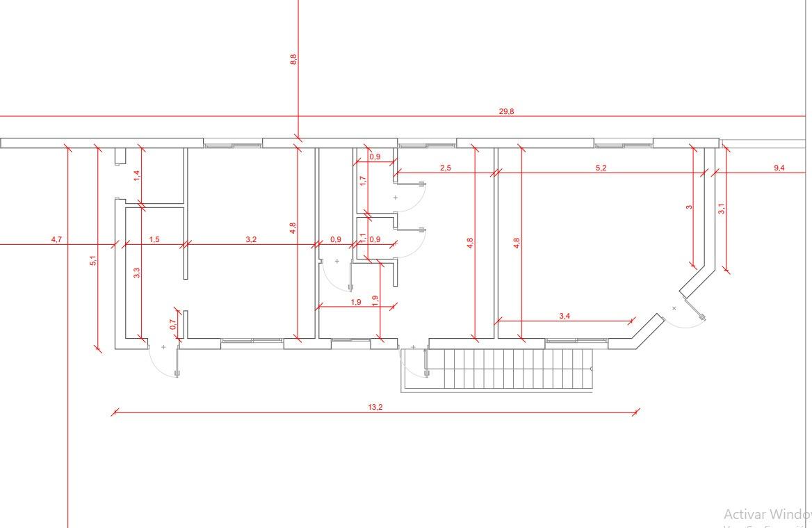
¡Oportunidad única en el Polígono de El Palmar, Murcia! Presentamos esta excelente nave industrial que combina espacio, funcionalidad y modernidad, perfecta para impulsar tu negocio o proyecto empresarial.~~Esta propiedad cuenta con una parcela de 2.450 m², ofreciendo un amplio espacio exterior para maniobras, almacenamiento o futuras ampliaciones. La nave en sí tiene una superficie de 1.200 m², diseñada para adaptarse a diferentes tipos de actividades industriales o comerciales, con un interior amplio y versátil que facilita la organización y el desarrollo de tu negocio.~~Además, dispone de oficinas superiores de 110 m², completamente nuevas y equipadas, ideales para gestionar la parte administrativa o para reuniones y atención a clientes en un entorno profesional y cómodo. También cuenta con un espacio adicional de 120 m² que incluye vestuario, baños y otra oficina, proporcionando todas las instalaciones necesarias para el bienestar y la comodidad del personal.~~La nave ha sido completamente renovada, con una pintura ignifugada y nuevas instalaciones, garantizando seguridad y durabilidad. Las oficinas también son nuevas, con un diseño moderno y funcional que se adapta a las necesidades actuales del mercado.~~Ubicada en el Polígono de El Palmar, una zona estratégica en Murcia, esta nave ofrece excelente acceso a las principales vías de comunicación, facilitando la entrada y salida de mercancías y personal. La ubicación es ideal para empresas que buscan estar cerca de centros logísticos, proveedores y clientes, en un entorno industrial consolidado.~~No pierdas la oportunidad de adquirir un espacio preparado para crecer y desarrollar tu negocio en una de las zonas más dinámicas de Murcia. ¡Contáctanos para más información o para concertar una visita y descubrir todo lo que esta nave industrial tiene para ofrecerte!~

Detalle

  • Icon
    Referencia
    HG1001JML
  • Icon
    Tamaño de propiedad
    1500 m²
  • Icon
    Tamaño del terreno
    2450

Actualizado en noviembre 13, 2025 a 5:29 pm

Dirección

  • Ciudad: El Palmar
  • Código postal: 30120
  • Barrio: El palmar
  • País: es

Eficiencia energética

Clase energética
G
Índice de rendimiento energético
  • A+
  • A
  • B
  • C
  • D
  • E
  • F
  • | Clase energética G
    G