Rango de precios: De a

Comparar listados

Piso en Cartagena ciudad. Carlos III

30203 Cartagena
210.000€

Descripción

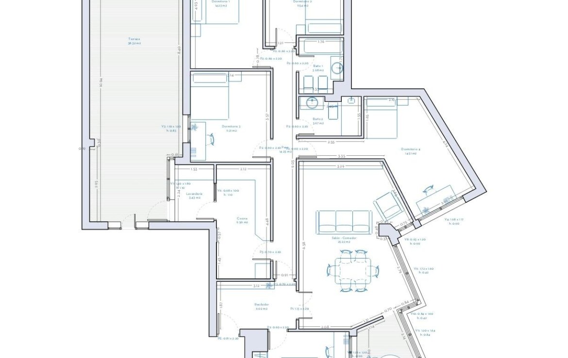
Luminoso y amplio piso en una ubicación estratégica en Cartagena~~Este espacioso y bien iluminado piso se encuentra en una zona privilegiada de Cartagena, a pocos minutos a pie de las estaciones de tren, cercanías y autobuses, así como de universidades, supermercados y el casco histórico. Su excelente ubicación permite disfrutar de todos los servicios sin necesidad de vehículo, siendo ideal para quienes buscan comodidad y accesibilidad.~~Cada estancia cuenta con al menos una ventana, asegurando una ventilación y luminosidad excepcionales en toda la vivienda.~~Se adjuntan plano y fotografías recientes para mayor referencia.~~🔹 Disponibilidad de visitas: El inmueble estará disponible para visitas a partir de mayo, ya que actualmente se encuentra alquilado con notificación tramitada. Estamos organizando la agenda de visitas para esa fecha.~~Para más información o para coordinar una visita, no dudes en contactar.~

Detalle

  • Icon
    Referencia
    G2503241
  • Icon
    5
    Dormitorios
  • Icon
    2
    Baños
  • Icon
    Tamaño de propiedad
    137 m²
  • Icon
    Año de construcción
    1979

Actualizado en enero 24, 2026 a 5:29 pm

Dirección

  • Ciudad: Cartagena
  • Código postal: 30203
  • Barrio: San Ginés-Virgen de la Caridad
  • País: es

Eficiencia energética

Clase energética
G
Índice de rendimiento energético
  • A+
  • A
  • B
  • C
  • D
  • E
  • F
  • | Clase energética G
    G