Rango de precios: De a

Comparar listados

OPORTUNIDAD INVERSORES Y PROMOTORES INMOBILIARIOS

30500 Molina de Segura
9.600.000€

Descripción

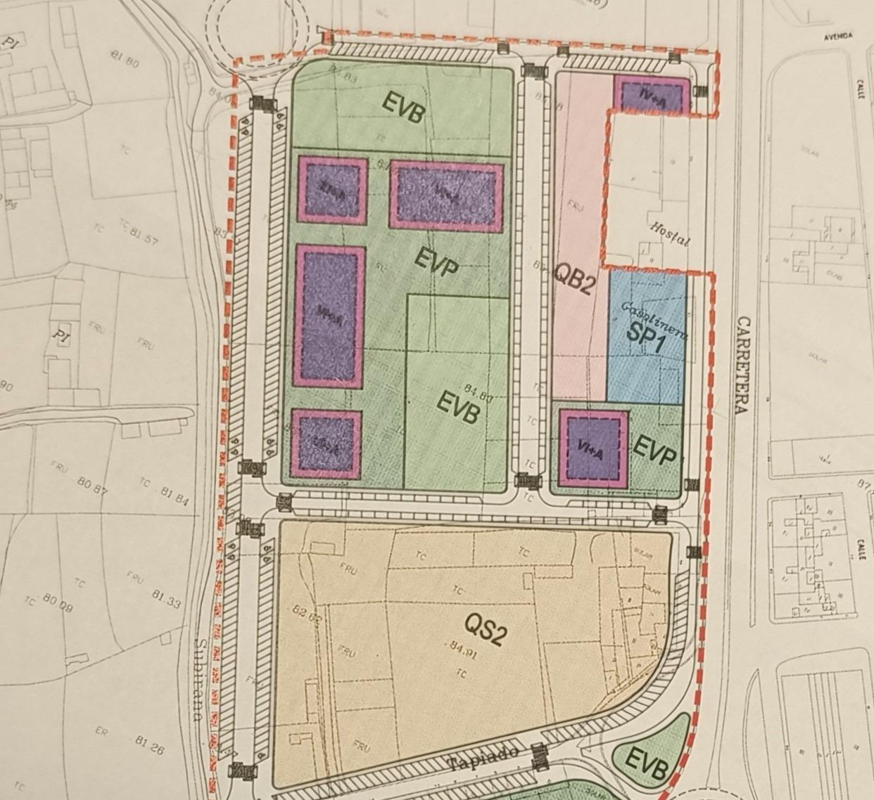
OPORTUNIDAD INVERSORES Y PROMOTORES INMOBILIARIOS. Se vende TERRENO para URBANIZAR en MOLINA DE SEGURA.~PLAN PARCIAL RESIDENCIAL CON APROBACIÓN DEFINITIVA, tiene fácil acceso desde la N-301 a la entrada de Molina Este terreno es ideal para promotores que buscan una ubicación estratégica en una zona urbana. Cuenta con una superficie de terreno o solar urbanizable para uso residencial de 48.000m2, este suelo ofrece la posibilidad de desarrollar un proyecto residencial de gran envergadura. Además, su proximidad a servicios educativos, comerciales y de ocio lo convierte en una opción muy atractiva y de alta demanda por comodidad y conveniencia. ~Conectado a importantes vías de acceso, este terreno ofrece una excelente oportunidad para inversionistas y promotores inmobiliarios en busca de un proyecto con gran potencial y rendimiento. Está a unos 800 metros del Ayuntamiento de Molina de Segura. En los alrededores, a 500 metros, hay zonas verdes con oferta cultural, colegios públicos, paradas de autobús, hospital, centro comercial y otros comercios tradicionales. Además, a 750 metros se encuentra el Río Segura con su via verde y zonas de recreo, área de pesca y zonas de parques y jardines. ~Sin duda esta resultara una muy buena opción para realizar un PROYECTO RESIDENCIAL A MEDIDA DE GRAN RELEVANCIA. No dudes en ponerte en contacto para obtener más información. ~Bienvenido a Molina de Segura, un lugar encantador y dinámico que ofrece una variedad de puntos de interés a poca distancia. A tan solo 10 minutos a pie, encontrarás la plataforma de transporte público Barrio de Fátima, que te conectará con facilidad a otras partes de la ciudad. Además, a la misma distancia, podrás acceder a otro punto de transporte público con las mismas comodidades. Si buscas un entorno natural, a 13 minutos a pie se encuentra el hermoso Parque Santa Rita, con una extensa área de 2428.77 m2para relajarte y disfrutar de la naturaleza. Además, a la misma distancia, encontrarás el Área Infantil Plaza de la Cerámica, un lugar perfecto para pasar tiempo al aire libre. A 14 minutos a pie, descubrirás la Dama de Molina, y a 15 minutos, la Plaza de la Molinera y la Plaza 1 de Mayo, todos ellos espacios verdes ideales para disfrutar del aire libre. En cuanto a educación, en un radio de 14 minutos a pie, tendrás acceso a tres escuelas: el Colegio la Consolación, el Colegio Nuestra Señora de Fátima y el Colegio de Educación Infantil y Primaria Gregorio Miñano, para que puedas encontrar la mejor opción educativa para tus seres queridos. Para satisfacer tus necesidades culinarias, a tan solo 15 minutos a pie se encuentra el restaurante PizzaExpress, donde podrás disfrutar de deliciosas pizzas en un ambiente acogedor. Por último, en caso de emergencia médica, a 15 minutos a pie encontrarás el Hospital de Molina, asegurándote de que la atención médica está a poca distancia en caso de ser necesaria. ¡No busques más! Molina de Segura te ofrece una combinación perfecta de comodidad, naturaleza, educación, gastronomía y servicios médicos, todo a poca distancia. ¡Ven y descubre todo lo que este encantador lugar tiene para ofrecer!~~

Detalle

  • Icon
    Referencia
    REG3296AL
  • Icon
    3
    Dormitorios
  • Icon
    2
    Baños
  • Icon
    Tamaño de propiedad
    0 m²
  • Icon
    Tamaño del terreno
    48000
  • Icon
    Año de construcción
    1927

Actualizado en enero 20, 2026 a 5:28 pm

Dirección

  • Ciudad: Molina de Segura
  • Código postal: 30500
  • Barrio: Molina de segura
  • País: es

Eficiencia energética

Clase energética
G
Índice de rendimiento energético
  • A+
  • A
  • B
  • C
  • D
  • E
  • F
  • | Clase energética G
    G