Rango de precios: De a

Comparar listados

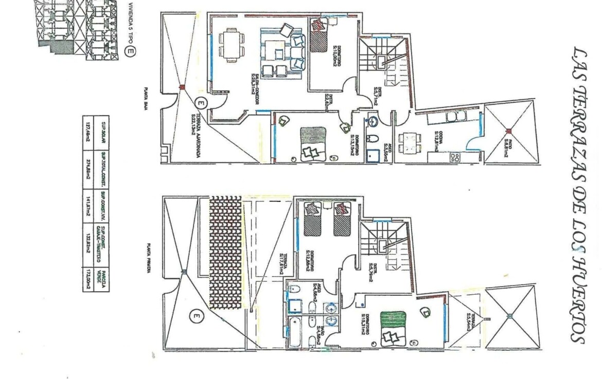
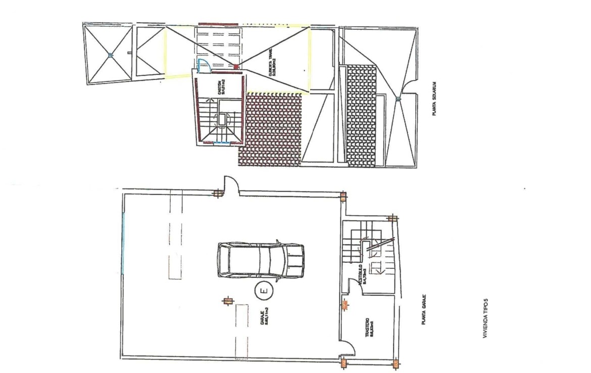
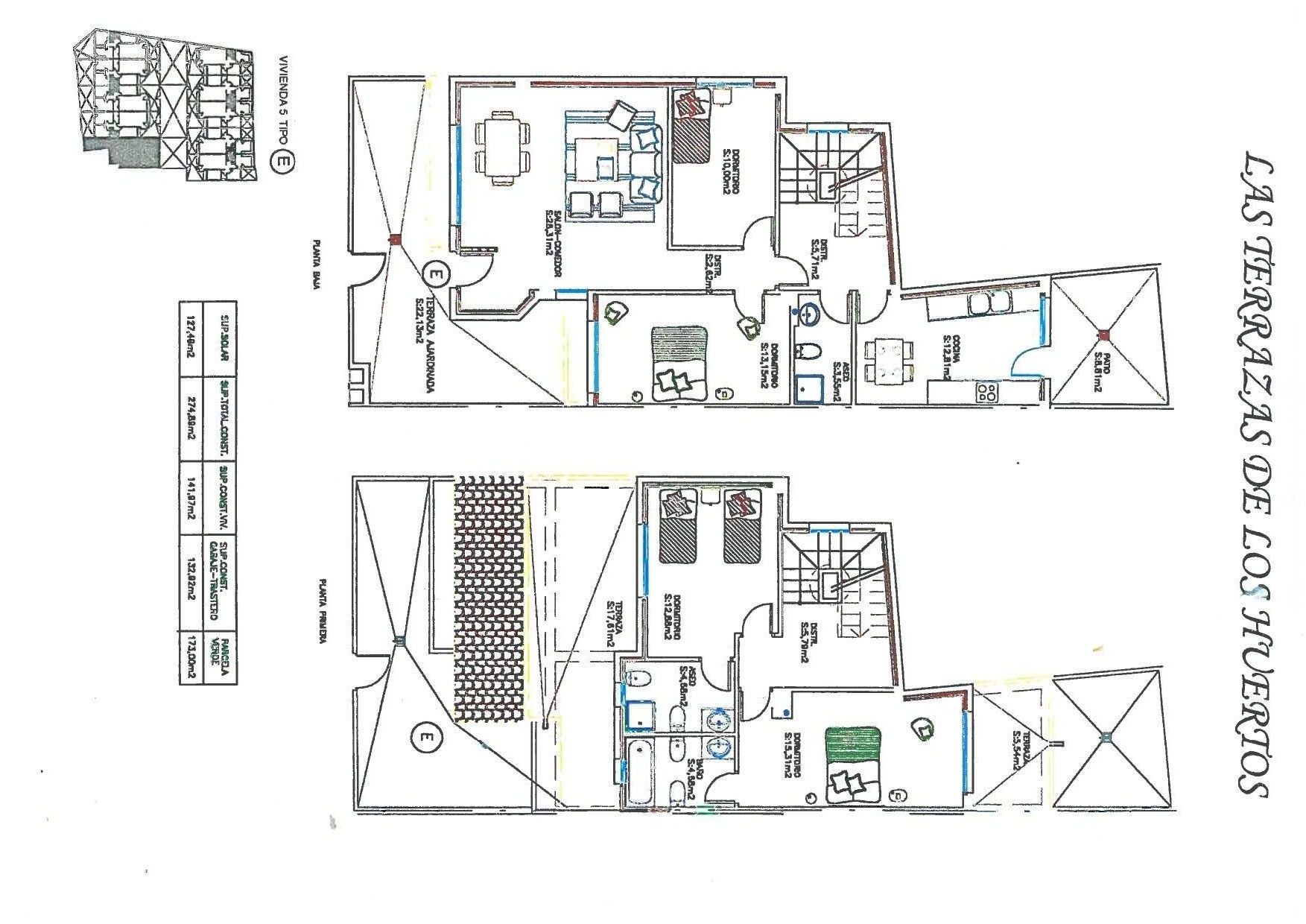
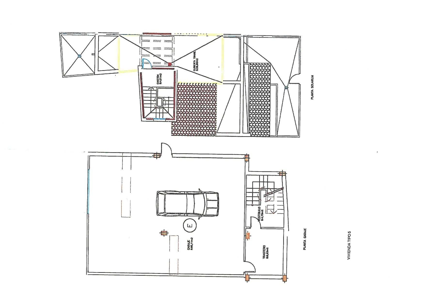
ENCANTADOR DÚPLEX CON JARDÍN DE 175 METROS EN «LAS TERRAZAS DE LOS HUERTOS»

30369 La Union
259.000€

Descripción

Bienvenido a este encantador dúplex familiar situado en una tranquila urbanización privada, » LAS TERRAZAS DE LOS HUERTOS»ideal para disfrutar de la vida en familia. ~~Con un diseño espacioso y funcional, adjuntamos planos, esta propiedad cuenta con 4 habitaciones luminosas, perfectas para acomodar a toda la familia o crear un espacio de trabajo y estudio.~~La vivienda dispone de 3 baños, lo que garantiza comodidad y privacidad para todos los miembros del hogar. ~Al entrar, te recibirá un amplio porche que invita a disfrutar de momentos al aire libre, ideal para relajarse o compartir con amigos y familiares. ~Una de las características más destacadas de esta propiedad son sus terrazas, perfectas para disfrutar del sol y las vistas.~La vivienda cuenta con un adicional extenso jardín de 173 metros, brindando un espacio ideal para que los niños jueguen o para crear tu propio oasis verde. Sin duda alguna, un espacio privilegiado para actividades al aire libre, como barbacoas o juegos.~~~La vivienda también incluye un sótano, que ofrece una habitación adicional, perfecta para un gimnasio, sala de juegos o un espacio de almacenamiento. Además, cuenta con un trastero, lo que proporciona aún más espacio para organizar tus pertenencias.~~La urbanización privada cuenta con una hermosa piscina comunitaria, ideal para refrescarse en los días calurosos y disfrutar de momentos de diversión con la familia y amigos. La zona es tranquila y cuenta con un vecindario muy bueno, lo que garantiza un ambiente seguro y acogedor.~~Este dúplex es la opción perfecta para quienes buscan un hogar espacioso, cómodo y en un entorno familiar. ¡No pierdas la oportunidad de visitarlo!~

Detalle

  • Icon
    Referencia
    IHE_2516_SD
  • Icon
    4
    Dormitorios
  • Icon
    3
    Baños
  • Icon
    Tamaño de propiedad
    275 m²
  • Icon
    Tamaño del terreno
    173
  • Icon
    Año de construcción
    2007

Actualizado en febrero 16, 2026 a 5:27 pm

Dirección

  • Ciudad: La Unión
  • Código postal: 30369
  • Barrio: ROCHE
  • País: es

Eficiencia energética

Clase energética
G
Índice de rendimiento energético
  • A+
  • A
  • B
  • C
  • D
  • E
  • F
  • | Clase energética G
    G