Rango de precios: De a

Comparar listados

Casona Medicinal, invierte en salud

30193 Mula
75.000€

Descripción

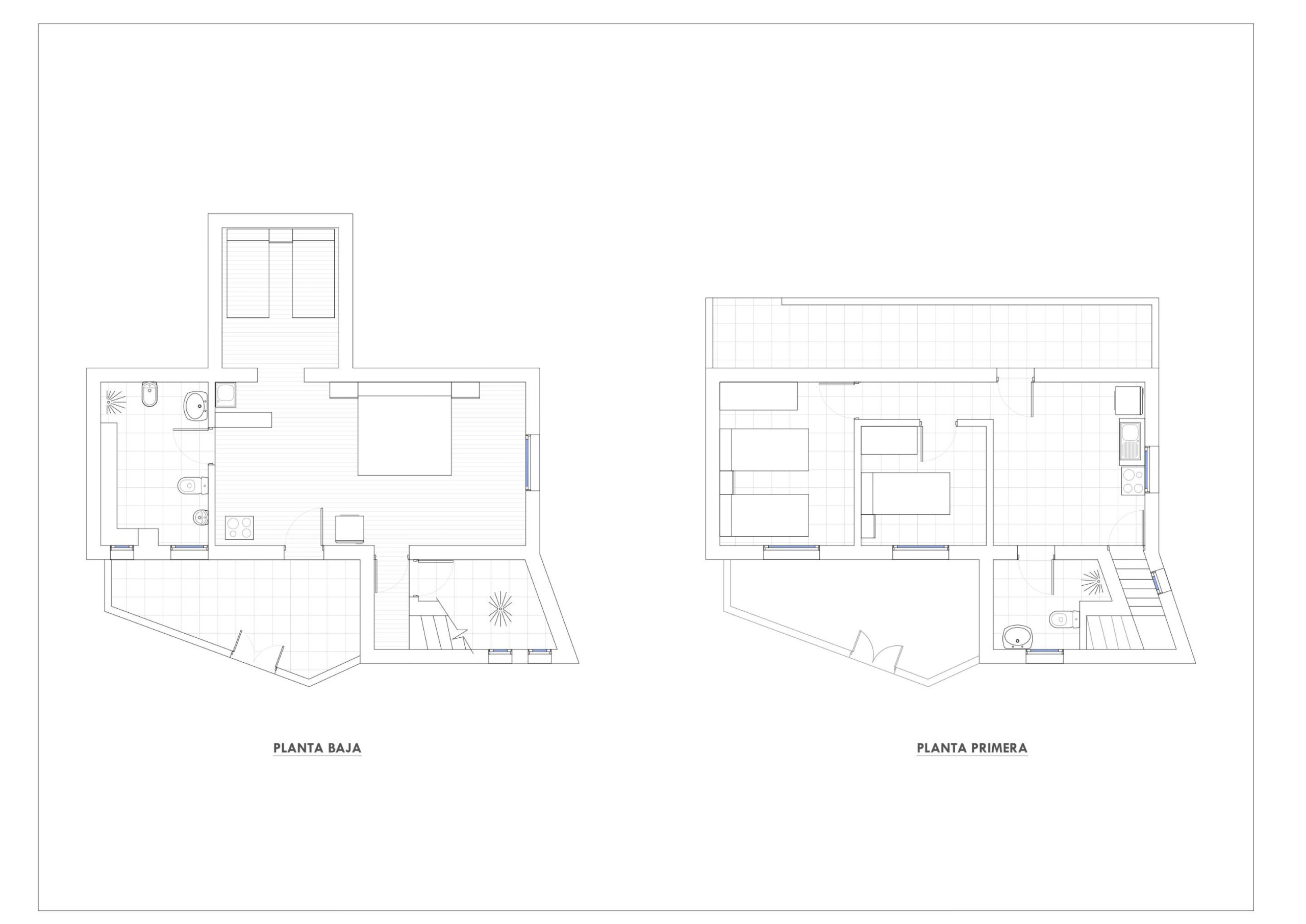
Se vende en exclusiva esta casa señorial que data de 1889, enclavada en Los Baños de Mula, a 6 kilómetros de la ciudad de Mula, en un lugar lleno de historia y misterios, con atractivo de interés turístico, terapéutico y arqueológico, dado entre otras cosas por sus restos arqueológicos de ciudad visigoda y por su reconocido manantial de agua termal que se encuentra a tan sólo 20 metros. Podrás disfrutar de los beneficios para tratamientos del aparato digestivo, locomotor y respiratorio, para la piel y paliativa de la psiorasis, dermatitis atópica, acné rosa y artritis entre otros, además de su efecto depurativo en la sangre, relajación de la tensión y disminución de los dolores musculares. De ahí lo que te comento… invertir en salud no es caro. No dejes escapar esta oportunidad!!~~Es una casa de pueblo con 118 m2 de superficie construida y reformada cuidadosamente y respetando los encantos del tiempo y la zona donde se ubica, lo que la hace aún más exclusiva.~~Se distribuye en dos plantas, adaptadas a la topografía existente. Actualmente pertenecen a la misma propiedad pero pueden estár independientes. Ideal para mantenerla habitada todo el año, ya sea como vivienda habitual o para alquilar. Puedes comprarla, y por su distribución, beneficiarte de alquilar una planta y vivir en la otra, lo que te permitirá amortizar parte del dinero invertido, hasta que llegue el momento de que todo sea beneficios, sin dejar de disfrutar de los baños termales al poder mantenerte en la zona.~~La Primera Planta (también Planta Baja por detrás por la irregularidad del terreno), se distribuye en dos dormitorios, un baño y un pequeño espacio multifuncional. ~~La Planta Baja tiene un baño adaptado para personas de movilidad reducida, un salón todo diáfano multifunción que en estos momentos tiene 2 camas por la demanda de alquiler, más un altillo que puede prepararse para poner un colchón en caso que se necesite, además una habitación tipo cueva, que mantiene la temperatura agradable todo el año aunque la vivienda está climatizada.~~Rompe la rutina y disfruta de una vivienda atípica en un entorno natural y terapéutico. Conoce los atractivos del entorno: Puebla de Mula, Castillo de la Puebla, Ruta de la Muela de Albudeite, La Barraca, Albudeite, su Iglesia, Yéchar y Mula con sus encantos propios.~~La zona promete prosperidad, por algo los inversores están comprando casonas como éstas, los encantadores Baños con aguas naturales, de calidad superior a otros existentes, proporcionan reservados idílicos de gran demanda.~~Estaremos encantados de acompañarte en todo el proceso de compraventa para que no sea un problema y que no se alargue en el tiempo este gran momento de empezar a disfrutar de esta casa rural.~~Si tienes problemas con la financiación, podemos ayudarte a gestionar la más conveniente según tus condiciones y con menores vinculaciones.~~Los gastos adicionales no están incluidos en el precio de venta, ponte en contacto con nosotros y te explicaremos todo.~~~~~~

Detalle

  • Icon
    Referencia
    RYM-01124
  • Icon
    3
    Dormitorios
  • Icon
    2
    Baños
  • Icon
    Tamaño de propiedad
    118 m²
  • Icon
    Año de construcción
    1889

Actualizado en enero 24, 2026 a 5:28 pm

Dirección

  • Ciudad: Mula
  • Código postal: 30193
  • Barrio: Baños de mula
  • País: es

Eficiencia energética

Clase energética
G
Índice de rendimiento energético
  • A+
  • A
  • B
  • C
  • D
  • E
  • F
  • | Clase energética G
    G